RESIDENZA CON 3 APPARTAMENTI - Venduto
SPORMAGGIORE a 10 Km da Andalo
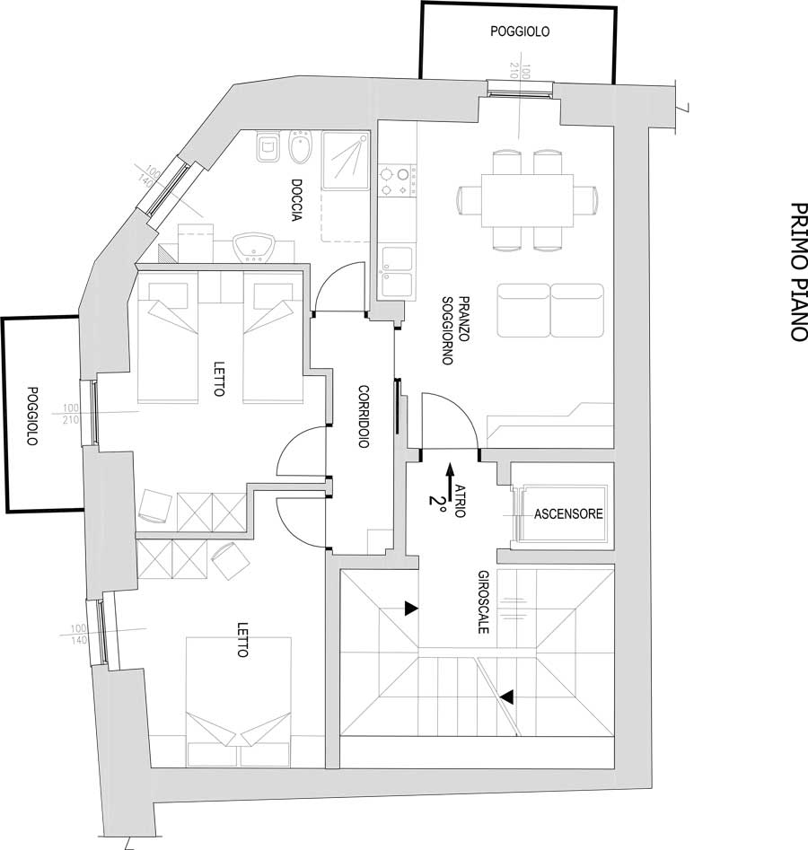
Comodo al centro di Spormaggiore, edificio di recente ristrutturazione con 3 appartamenti di 70 mq. su 3 piani. Composti da soggiorno con angolo cottura, 2 stanze, 1 bagno e cantina. tutti sono termo-autonomi a gas metano e con possibilità di acquistare il box auto.
DA EURO 130.000







