RESIDENZA PEGORAR - Venduto
ANDALO, Via Pegorar
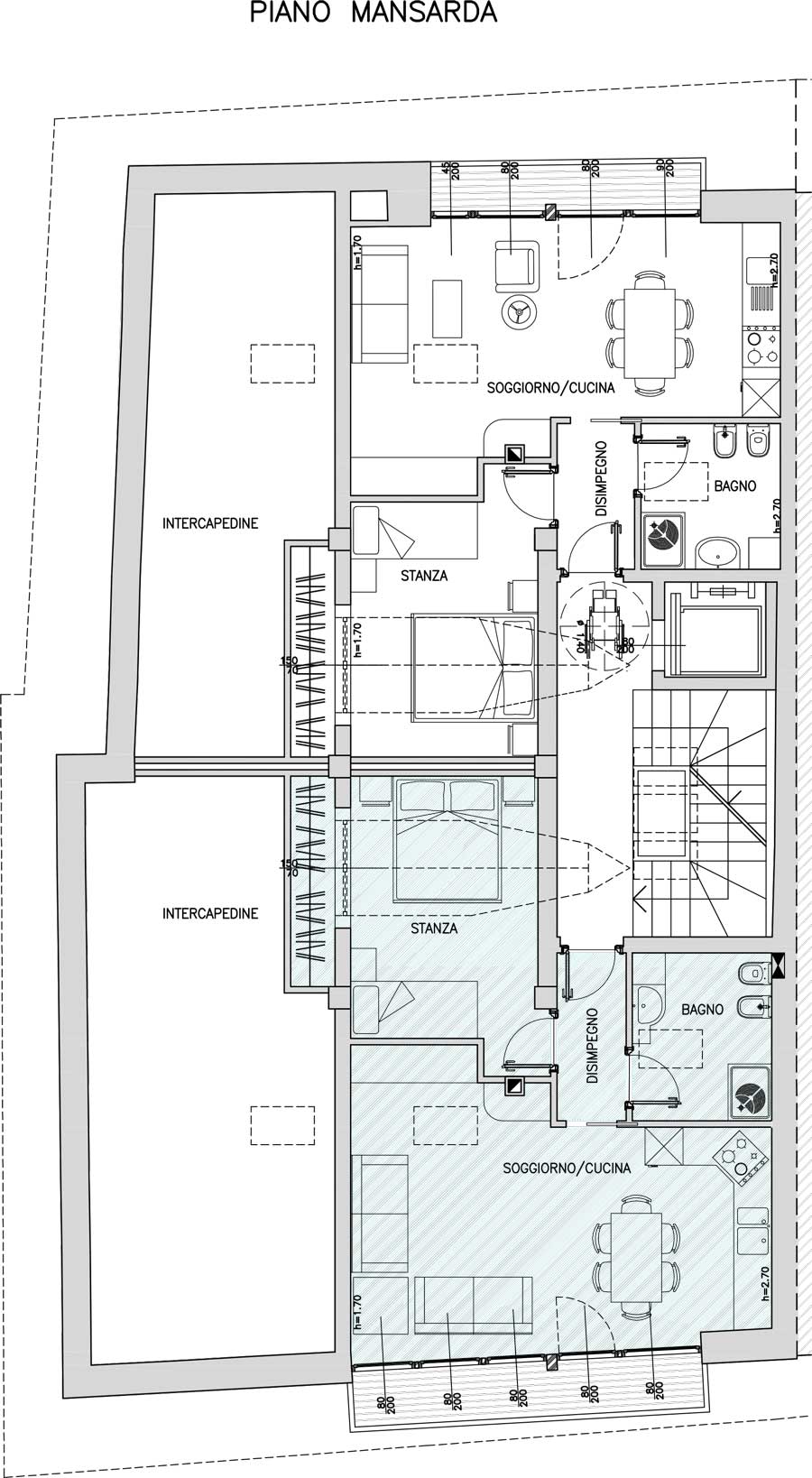
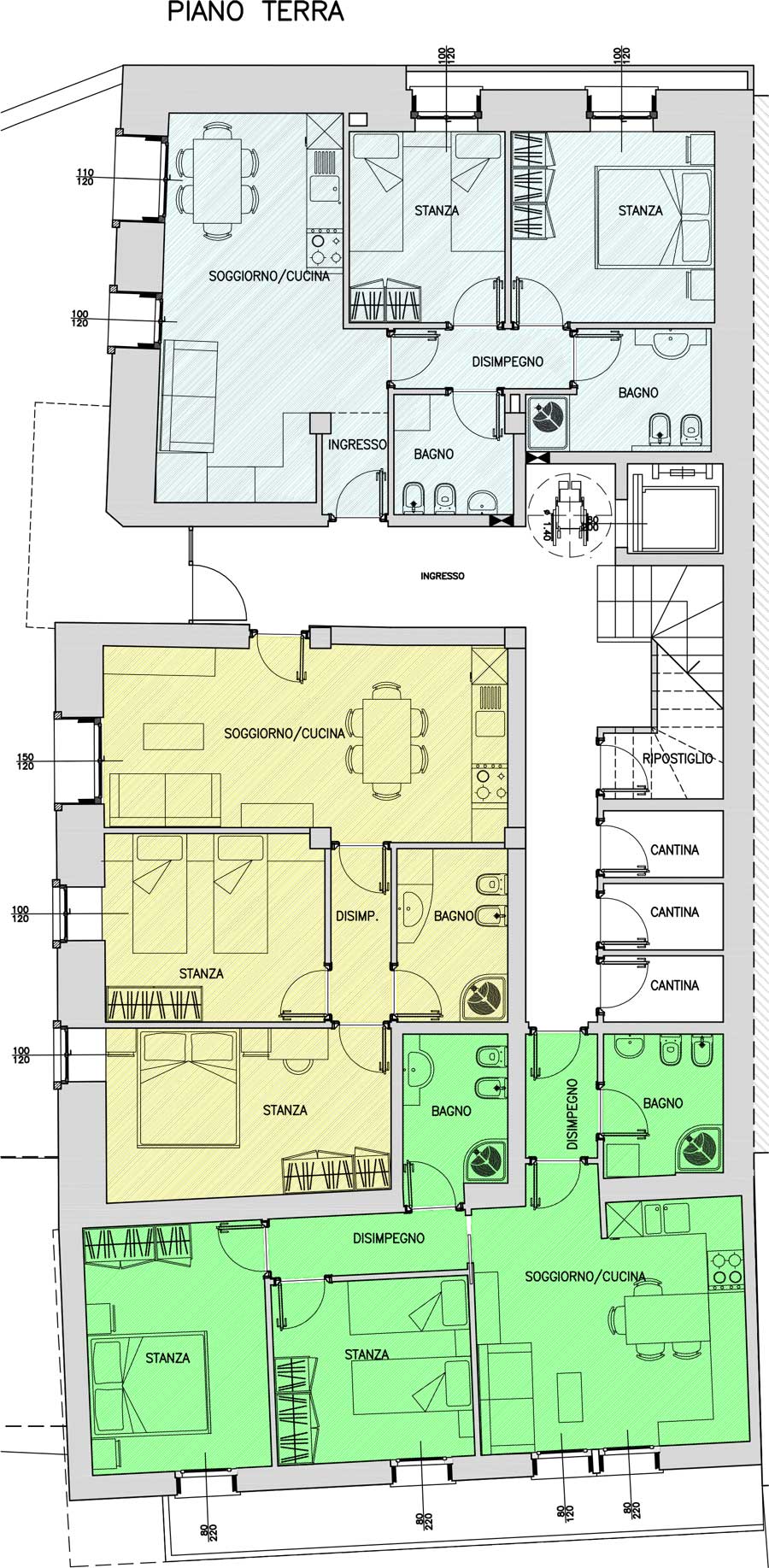
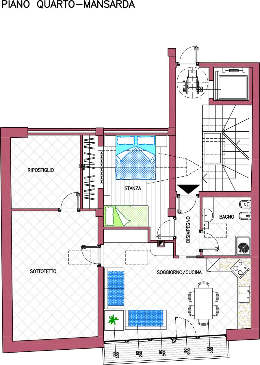
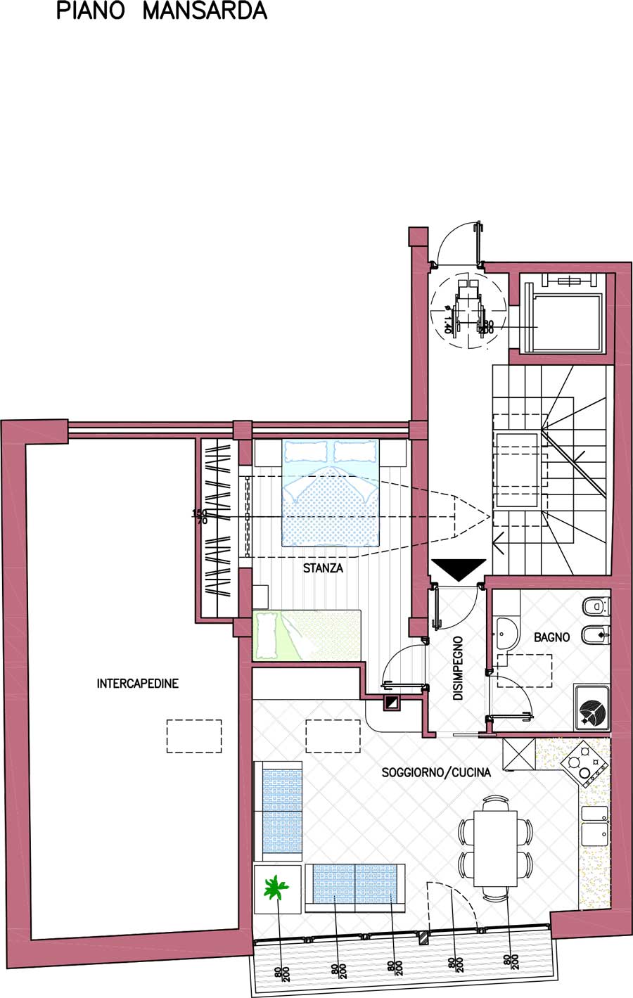
Residenza Pegorar. In zona tranquilla, comoda al centro sportivo di Andalo, con ottima vista sul paese e sulla Paganella. Porzione di casa di 16 appartamenti; Bilocali e trilocali di varie metrature, possibilità scelta piano, esposizione e tipologia, con una soluzione in mansarda. Le unità immobiliari sono composte da soggiorno con angolo cottura, 1 o 2 stanze, 1 o 2 bagni. gli appartamenti sono completi di cantina, posti auto esterni o coperti.
Riscaldamento centralizzato a gas metano.
Appartamenti nuovi.
Classe energetica B.
DA EURO 199.000
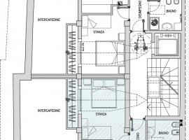
Scarica planimetrie in PDF:
- RESIDENZA_PEGORAR-alloggio_piano_mansarda
- RESIDENZA_PEGORAR-alloggio_piano_primo_secondo_e_terzo
- RESIDENZA_PEGORAR-alloggio_piano_secondo
- RESIDENZA_PEGORAR_-alloggi_piano_terra
- RESIDENZA_PEGORAR_Piano_IV_Mansarda
- RESIDENZA_PEGORAR_piano_mansarda
- RESIDENZA_PEGORAR_piano_secondo
- RESIDENZA_PEGORAR_piano_terra












